HACO Sádrokartonová revizní / vanová dvířka prachotěsná 150x150 mm
Standardní provedení se vyrábí s bílou nebo zelenou deskou, která se připevňuje k vnitřnímu rámu pomocí samovrtných šroubů. Pohodlné otevírání a zavírání zajišťují dva tlačné zámky umístěné v rozích vnějšího rámu.
Hlavní výhody modelu:
- zesílené tvarované rohy
- odnímatelný vnitřní rám zvyšující světlost poklopu
- kartáčové těsnění pro zachytávání prachu
- zajišťovací lanko pro komponenty
- snadno vyměnitelné křídlo po instalaci
- možnost použití pro keramické obklady
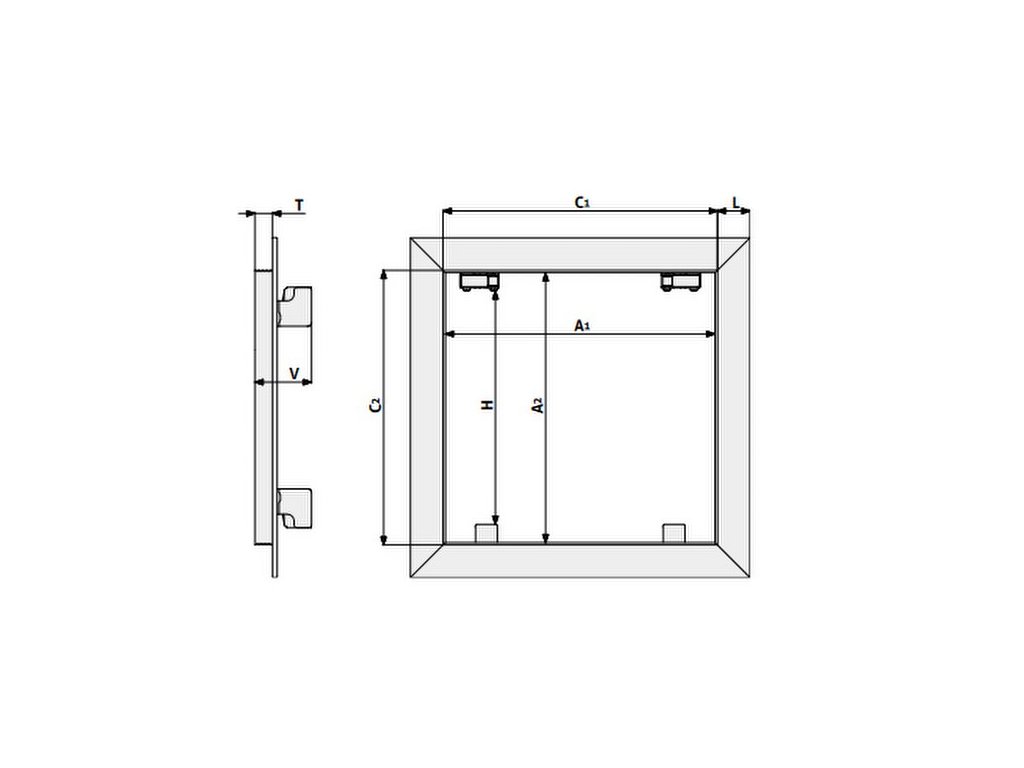
Rozměry:
| Typ: | SD 150x150 PT |
|---|---|
| c1[mm]: | 154 |
| c2[mm]: | 154 |
| L[mm]: | 24 |
| H[mm]: | 124 |
| A1[mm]: | 150 |
| A2[mm]: | 150 |
| T[mm]: | 13 |
| H[mm]: | 43 |
Doplňkové parametry
| Kategorie: | Sádrokartonové revizní a vanové dvířka |
|---|---|
| Hmotnost: | 0.69 kg |
| EAN: | 8595136507834 |
| Materiál: | Sádrokarton |
| Šířka: | 150 mm |
| Výška: | 150 mm |
Buďte první, kdo napíše příspěvek k této položce.
Přidat komentář
