Dražice elektrický zásobníkový ohřívač teplé vody OKHE ONE/E 100 plochý (pouze 32 cm), závěsný, svislý
Moderní plochý bojler určený pro přípravu teplé užitkové vody v domácnostech s omezeným prostorem
- Rozsah regulace teploty: 0 – 77 °C
- Stupeň krytí: IP44
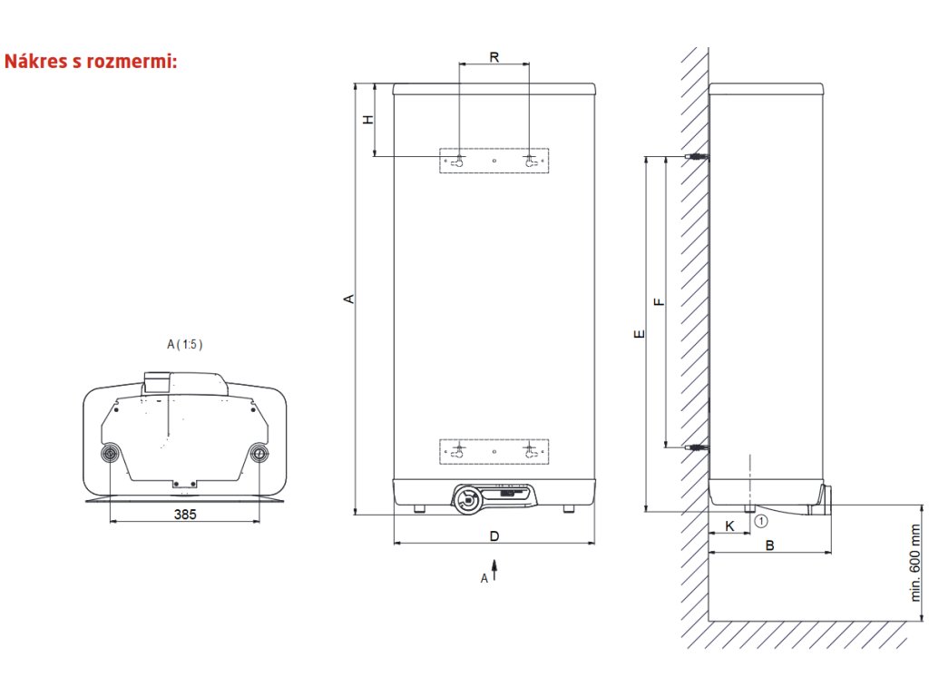
- Hloubka: 318 mm
Elektrický zásobníkový ohřívač vody Dražice OKHE ONE/E 100 je moderní plochý bojler určený pro přípravu teplé užitkové vody v domácnostech s omezeným prostorem. Díky kompaktní konstrukci s hloubkou přibližně 32 cm je vhodný pro instalaci do koupelen, technických místností nebo vestavěných skříněk.
Ohřívač využívá konstrukci se dvěma vnitřními nádržemi, která umožňuje rychlejší ohřev vody a efektivní využití objemu zásobníku. Elektrický ohřev zajišťuje keramické topné těleso uložené v ochranné jímce, což omezuje tvorbu vodního kamene a prodlužuje životnost zařízení.
Klíčové vlastnosti
- Plochý design – hloubka pouze cca 32 cm – ideální řešení pro menší koupelny.
- Dvojitá nádrž – konstrukce se dvěma zásobníky umožňuje rychlejší ohřev vody.
- Keramické topné těleso – uložené v ochranné jímce pro omezení tvorby vodního kamene.
- Smaltovaná ocelová nádoba – kvalitní ochrana proti korozi.
- Hořčíková anoda – dodatečná ochrana vnitřní nádoby.
- Závěsná konstrukce – montáž na stěnu šetří prostor.
- Polyuretanová izolace – minimalizuje tepelné ztráty.
- Elektrické krytí IP44 – umožňuje bezpečné použití v blízkosti odběrných míst vody.
Popis funkce
Bojler Dražice OKHE ONE/E 100 pracuje na principu akumulačního ohřevu vody pomocí elektrického topného tělesa. Termostat umožňuje nastavení požadované teploty vody a po jejím dosažení se ohřev automaticky přeruší. Konstrukce se dvěma vnitřními nádržemi zároveň zajišťuje rychlejší ohřev a stabilní dodávku teplé vody.
Vnitřní ocelová nádoba je chráněna smaltovanou vrstvou a hořčíkovou anodou proti korozi. Polyuretanová izolace zároveň omezuje tepelné ztráty a pomáhá udržet teplotu vody v zásobníku po delší dobu.
Doplňkové parametry
| Kategorie: | Elektrické ohřívače vody (bojlery) od 51 do 100 litrů |
|---|---|
| Hmotnost: | 55 kg |
| ? Energetická třída: | C |
| Objem: | 80 l |
| Způsob montáže: | Vertikální |
| Příkon topného tělesa: | 2000 W |
| Napájení: | 230 V / 50 Hz |
| Maximální pracovní tlak: | 6 bar |
| Rozsah regulace teploty: | 0 – 77 °C |
| Stupeň krytí: | IP44 |
| Hloubka: | 318 mm |
Video prezentácia
Buďte první, kdo napíše příspěvek k této položce.
