Akumulačná nádrž KHT PS-C-00 1500 L – bez výmenníka, s odnímateľnou izoláciou
Kvalitné akumulačné nádrže s izoláciou za cenu nádrží bez izolácie od iných výrobcov.
Akumulačná nádrž (vyrovnávacia nádrž) je zodpovedná za zhromažďovanie, skladovanie a prenos prebytočnej teplej vykurovacej vody z rôznych zdrojov tepla, ako sú napr:
- kotly na pelety
- tepelné čerpadlá
- krb s vodným plášťom
- kotly na uhlie
Akumulačná nádrž chráni zariadenie ústredného kúrenia. Vyrovnáva rozdiel medzi tepelným výkonom vykurovacích zariadení a výkonom odovzdaným do vykurovacieho systému.
Tepelná izolácia akumulačných nádrží je vyrobená z vrstvy penového polystyrénu. Tepelnoizolačný kryt je vyrobený z plastu. Naše akumulačné nádrže majú vysokú triedu energetickej účinnosti. Ponuka skupiny KHT zahŕňa závesné aj stojace akumulačné nádrže vo veľkostiach od 60 do 2 000 litrov.
Účelom akumulačnej nádrže je zhromažďovať prebytočnú vyprodukovanú tepelnú energiu, ktorú možno využiť pri zvýšenej potrebe tepla v budove.
Princíp fungovania akumulačnej nádrže možno prirovnať k tukovému tkanivu v ľudskom tele. Zhromažďujeme ho, aby sme ho mohli využiť pri zvýšenej potrebe energie (napr. počas tréningu, behu, jazdy na bicykli atď.).
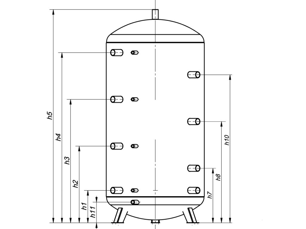
Technické parametre:
- Maximálny pracovný tlak v nádrži: 0,3 MPa
- Vrchný nátrubok napojenia: 5/4"
| Nominálny objem (l) | 200 | 300 | 500 | 800 | 1000 | 1500 | 2000 |
|---|---|---|---|---|---|---|---|
| Celková výška - h5 (mm) | 1077 | 1109 | 1642 | 1783 | 2033 | 2032 | 2143 |
| Priemer bez izolácie (mm) | 500 | 600 | 650 | 790 | 790 | 1000 | 1200 |
| Priemer s izoláciou (mm) | 660 | 760 | 810 | 950 | 950 | 1160 | 1360 |
| Objem (l) | 175 | 262 | 473 | 744 | 865 | 1381 | 2035 |
| Hmotnosť (kg) | 41 | 54 | 70 | 86 | 95 | 145 | 200 |
| Nátrubky napojenia (6/4"), spiatočky (1") a teplomeru (1/2") - výška h1 (mm) | 174 | 198 | 220 | 307 | 312 | 298 | 356 |
| Nátrubky napojenia (6/4") a čidla / teplomeru (1/2") - výška h2 (mm) | 394 | 418 | 600 | 667 | 772 | 758 | 861 |
| Nátrubky napojenia (6/4") a čidla / teplomeru (1/2") - výška h3 (mm) | 614 | 638 | 980 | 1047 | 1252 | 1218 | 1236 |
| Nátrubky napojenia (6/4") a čidla / teplomeru (1/2") - výška h4 (mm) | 834 | 858 | 1370 | 1427 | 1712 | 1678 | 1676 |
| Nátrubok napojenia (6/4") - výška h7 (mm) | 284 | 308 | 410 | 487 | 542 | 528 | 608 |
| Nátrubok napojenia (6/4") - výška h8 (mm) | 504 | 528 | 790 | 867 | 1022 | 988 | 983 |
| Nátrubok napojenia (6/4") - výška h10 (mm) | 724 | 748 | 1180 | 1247 | 1482 | 1448 | 1423 |
| Nátrubok výtoku (3/4") - výška h11 (mm) | 197 | 121 | 131 | 212 | 212 | 207 | 266 |
Dodatočné parametre
| Kategória: | Akumulačné nádrže bez výmenníka |
|---|---|
| Hmotnosť: | 145 kg |
| Objem: | 1500 l |
Buďte prvý, kto napíše príspevok k tejto položke.
